Kastellaun – top-Lage für Ihre Geschäftsidee / zentral, sichbar, flexibel
Überblick
| Objektbeschreibung
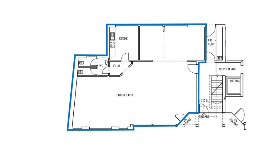
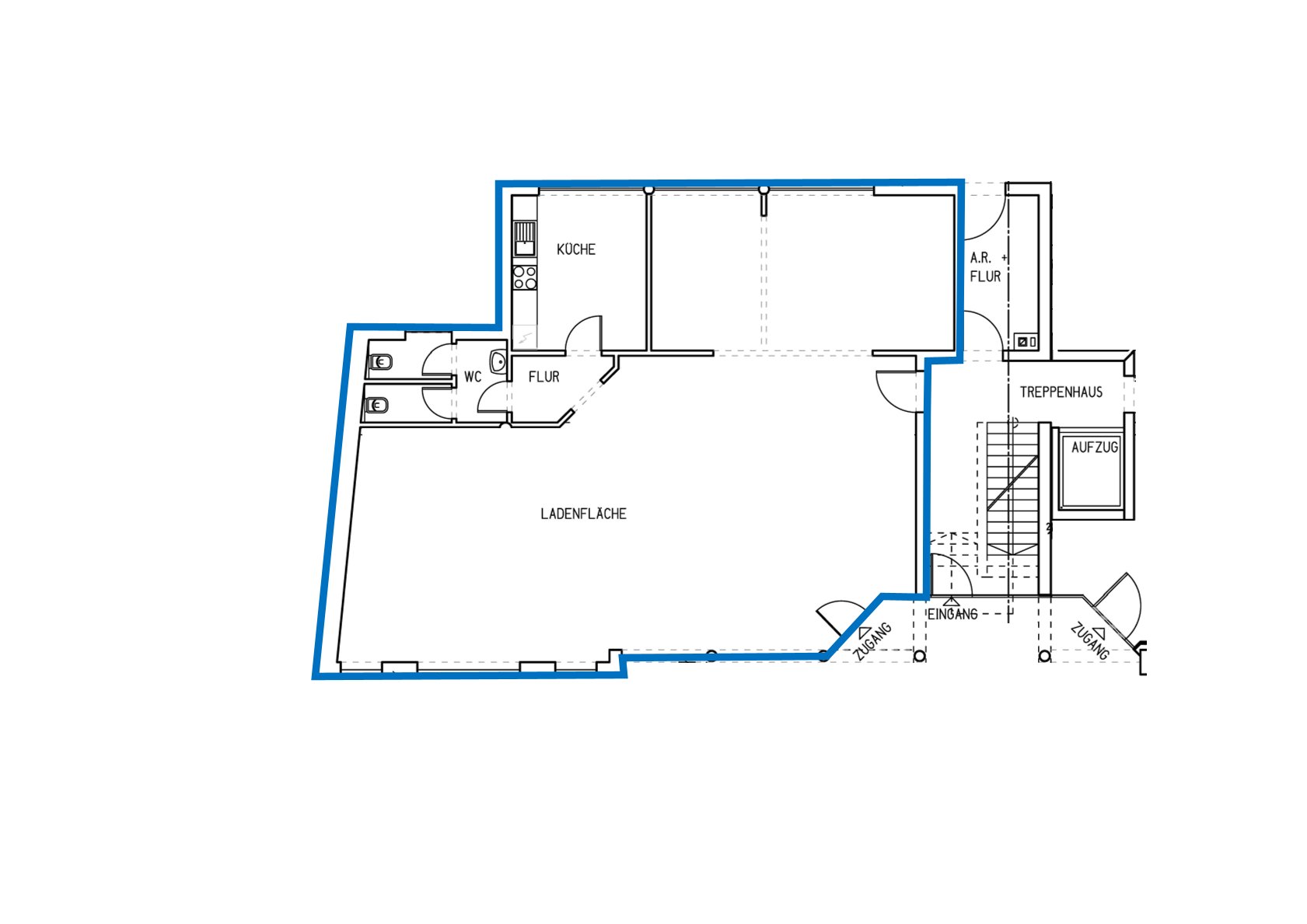
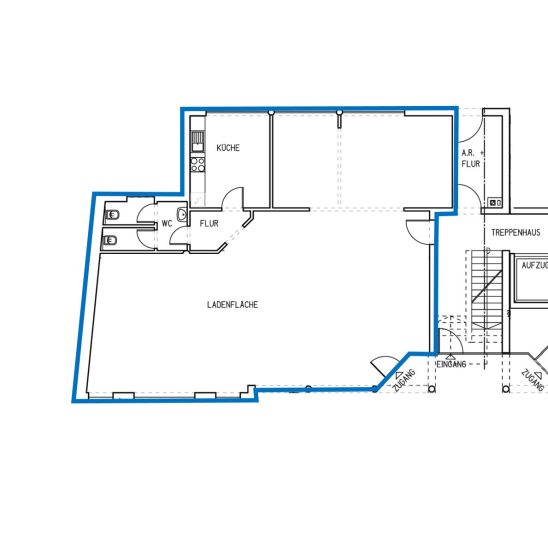
Provisionsfrei für den Mieter ! Die hier angebotene Gewerbeeinheit befindet sich im Erdgeschoss eines sehr gepflegten, modernen Geschäftshauses, mitten im Zentrum von Kastellaun und ist bequem und barrierefrei zu erreichen. Schon beim Betreten des Objektes öffnet sich eine weitläufige, helle Verkaufsfläche, die sich ideal für Präsentation, Ausstellung oder Kundenempfang eignet. Direkt daran schließt sich ein optisch abgetrennter Bereich an, der flexibel nutzbar ist, sei es als zusätzliche Verkaufsfläche oder als Büro. Dank der offenen Gestaltung behält man von hieraus stets den Überblick über den vorderen Bereich. Abgerundet wird das Raumangebot durch eine separate Küche sowie zwei sanitäre Anlagen.Diese Raumaufteilung bietet ideale Voraussetzungen für vielseitige Geschäftskonzepte – vom klassischen Einzelhandel bis hin zu verschiedenen Dienstleistungen. Vorstellbare Nutzungsmöglichkeiten des Objektes wären: Verkaufsräume, Praxisräume Büroräume (Steuerberater, Rechtsanwälte, Agenturen, …) Schulungszentrum, Ausstellungsräume, Beautysalon, Kosmetikstudio, Coworking Space Zusätzlich zur Gewerbefläche steht ein ca. 29 m² großer Kellerraum zur Verfügung, der sich als Lagerfläche eignet. Dieser ist bequem über den Aufzug erreichbar und bietet somit einen hohen Nutzungskomfort. Darüber hinaus sind dem Objekt zwei Stellplätze im rückwärtigen Bereich des Gebäudes zugeordnet, die kurze Wege gewährleisten. Der vorliegende Energieverbrauchsausweis spiegelt wider, dass insgesamt in diesem Gebäude nur sehr geringe Heizkosten entstehen.
In unmittelbarer Nachbarschaft des Gebäudes befindet sich ein großes, teilüberdachtes Parkdeck. Hier können Ihre Kunden, Patienten, Mandanten kostenfrei parken. Die Kaltmiete in Höhe von 1.050,00 € entspricht einem m²-Preis von 7,50 €. Bei gewerblicher Nutzung zuzüglich der gesetzlichen Mehrwertsteuer. Die Betriebskosten liegen bei 250,00 € / Monat. In diesem Betrag ist bereits eine Anpassung, bedingt durch die Energiepreissteigerung, berücksichtigt. Für weitere Informationen oder die Vereinbarung eines Besichtigungstermins stehen wir Ihnen gerne zur
Lage Die Gewerbeimmobilie liegt zentral in der Burgstadt Kastellaun, die umgeben von idyllischer Landschaft des Hunsrücks ist. Ein Highlight von Kastellaun ist die „Burg Kastellaun“, die hoch über der Stadt thront. Die Stadt hat eine lange und faszinierende Geschichte, in die Sie bei einer der unvergesslichen „Nachtwächterführungen“ eintauchen können. Es gibt verschiedene Supermärkte (Aldi, Lidl, Edeka, Rewe, Netto) und weitere Einzel-handelsgeschäfte, in denen Sie Ihre täglichen Einkäufe erledigen können. Wer es richtig frisch mag, der besucht den immer mittwochs von 8.00 Uhr bis 13.00 Uhr stattfindenden Wochen-markt. Er ist ein beliebter Treffpunkt für Einheimische und Besucher, um frische Lebensmittel, regionale Speziali-täten, Blumen, Handwerksartikel und andere Waren zu kaufen. Das ganz Besondere an Kastellaun ist die unvergleichbare Atmosphäre, die die historische Altstadt Ihren Einwoh-nern und Besuchern vermittelt und die gemütlichen Gasthäuser und Restaurants, in denen Sie die regionale Küche und lokale Spezialitäten genießen können. Die Umgebung bietet eine Vielzahl von Freizeitmöglichkeiten. Es gibt Sportplätze, Fitnessstudios, ein Schwimm-bad und andere Sport- und Freizeiteinrichtungen, die es den Bewohnern ermöglichen, aktiv zu bleiben und Ihre Freizeit zu genießen. Der nahegelegene Naturpark Soonwald-Nahe ist ein Paradies für Wanderer und Naturliebhaber. Hier können Sie durch dichte Wälder streifen und malerische Aussichtspunkte entdecken. Die Stadt liegt verkehrsgünstig an der B327 (Hunsrückhöhenstraße), so dass die nächste Autobahnauffahrt der A61 in nur wenigen Autominuten erreichbar ist. Bis zum Rhein bzw. der Mosel sind es mit dem Auto ca. 20 Minuten. |
| Eckdaten | Baujahr: 1995
Gewerbefläche: ca. 140 m² Nutzfläche: ca. 29 m² Verfügbar ab: 01.07.2025 Anzahl separater WCs: 2 Barrierefrei: Ja Aufzug: Ja Stellplätze: 2 Befeuerung/Energieträger: Gas Energieausweis: 19.01.2017 Energieausweistyp: Verbrauchsausweis Energieeffizienzklasse: C Energiekennwert: 100 kWh/(m²*a) Kaution: 2 MM Kalt Kaltmiete / Monat: 1.050,00 € Nebenkosten / Monat: 250,00 € |
|
|
|
| Hinweis | Alle Angaben nach bestem Wissen. Irrtum vorbehalten. Dieses Exposé ist eine Vorinformation, als Rechtsgrundlage gilt allein der abgeschlossene Mietvertrag. |
Details
-
ID:OP 130450903
-
Räume:2
-
Preis:1.050 €
-
Baujahr:1995
-
Status:
-
Erstellungsdatum:19.04.2017
-
Energieausweistyp:Verbrauchsausweis
-
Wesentlicher Energieträger:Gas
Energieausweis
-
Energieklasse:C
-
Energiebedarf:100 kWh/m²a
Provisionsfrei für den Mieter.
Alle Angaben beruhen auf den Aussagen und Unterlagen des Eigentümers. Es gelten unsere Geschäftsbedingungen, die in unseren Räumen zur Ansicht aushängen; auf Verlangen werden sie ausgehändigt.
Ausstattung
- Aufzug
- Stellplatz





