Kastellaun – modernisierte 3-Zimmer-Wohnung mit Balkon, Einbauküche und Stellplatz – zentral UND ruhig gelegen
Überblick
Beschreibung
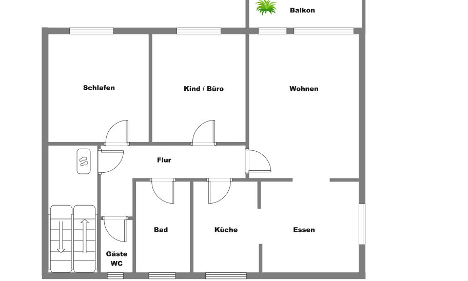
Diese ansprechende frisch renovierte Wohnung überzeugt mit einem praktischen und durchdachten Grundriss und lädt zum Wohnen und Leben ein.
Die Wohnung ist mit Laminatböden und modernen Fliesen, sowie neuen weißen Innentüren ausgestattet.
Neben dem geräumigen Schlafzimmer gibt es ein weiteres Zimmer, welches flexibel als Kinderzimmer, Gästezimmer oder Büro genutzt werden kann.
Das große, helle 37 m² große Wohn- Esszimmer bietet Zugang zum Balkon und dem direkt angrenzenden Küchenbereich, mit neuer Einbauküche, die modern und funktional ausgestattet ist. Ein freistehender Kühlschrank kann hier problemlos ergänzt werden.
Das Badezimmer und das Gäste-WC wurden vollständig modernisiert und verfügen über eine stilvolle, grau geflieste Gestaltung mit einer begehbaren, barrierefreien Dusche.
Insgesamt wird die Wohnung durch eine Abstellkammer abgerundet, die für zusätzlichen Stauraum sorgt.
Weiterhin gehört zu der Wohnung ein eigenes Kellerabteil.
Im Untergeschoss befindet sich eine gemeinschaftlich genutzte Waschküche. Dort besteht für Sie die Möglichkeit, eine eigene Waschmaschine aufzustellen.
Direkt vor dem Haus steht ein fest zugeordneter Stellplatz zur Verfügung, der bereits in der Kaltmiete inkludiert ist – bequemes Parken ist somit jederzeit gesichert.
Kaltmiete: 850,00 €
Miete Küche: 50,00 €
Nebenkosten, inclusive. Heizung: 250,00 €
Erstbezug nach Modernisierung
Top-zentrale Lage
- fußläufig erreichen Sie alles, was das Stadtleben attraktiv macht
Moderne Einbauküche
- bereits vorhanden (ohne Kühlschrank)
Stellplatz
- vorhanden
Kellerabteil
- für zusätzlichen Stauraum
Kaution
- 2 Monatsmieten kalt
„Ein Zuhause ist mehr als nur ein Ort.“
Lage
Die Wohnung liegt zentral in der Burgstadt Kastellaun, die umgeben von idyllischer Landschaft des Hunsrücks ist. Ein Highlight von Kastellaun ist die „Burg Kastellaun“, die hoch über der Stadt thront.
Die Stadt hat eine lange und faszinierende Geschichte, in die Sie bei einer der unvergesslichen „Nachtwächterführungen“ eintauchen können. Es gibt verschiedene Supermärkte (Aldi, Lidl, Edeka, Rewe, Netto) und weitere Einzelhandelsgeschäfte, in denen Sie Ihre täglichen Einkäufe erledigen können.
Wer es richtig frisch mag, der besucht den immer mittwochs von 8.00 Uhr bis 13.00 Uhr stattfindenden Wochenmarkt. Er ist ein beliebter Treffpunkt für Einheimische und Besucher, um frische Lebensmittel, regionale Spezialitäten, Blumen, Handwerksartikel und andere Waren zu kaufen.
Apotheken, Allgemeinmediziner, Fachärzte, Bäcker, Friseure, … sind in der Burgstadt ansässig.
Öffentliche Einrichtungen wie Kindergärten, Grund- und weiterführende Schulen sind ausreichend vorhanden.
Das ganz Besondere an Kastellaun ist die unvergleichbare Atmosphäre, die die historische Altstadt Ihren Einwohnern und Besuchern vermittelt und die gemütlichen Gasthäuser und Restaurants, in denen Sie die regionale Küche und lokale Spezialitäten genießen können.
Die Umgebung bietet eine Vielzahl von Freizeitmöglichkeiten. Es gibt Sportplätze, Fitnessstudios, ein Schwimmbad und andere Sport- und Freizeiteinrichtungen, die es den Bewohnern ermöglichen, aktiv zu bleiben und Ihre Freizeit zu genießen.
Der nahegelegene Naturpark Soonwald-Nahe ist ein Paradies für Wanderer und Naturliebhaber. Hier können Sie durch dichte Wälder streifen und malerische Aussichtspunkte entdecken.
Die Stadt liegt verkehrsgünstig an der B327 (Hunsrückhöhenstraße), so dass die nächste Autobahnauffahrt der A61 in nur wenigen Autominuten erreichbar ist. Bis zum Rhein bzw. der Mosel sind es mit dem Auto ca. 20 Minuten.
Details
-
ID:OP130450904
-
Wohnfläche:92,5 m²
-
Räume:3
-
Schlafzimmer:2
-
Badezimmer:1
-
Preis:1.150 €
-
Baujahr:1978
-
Status:
-
Erstellungsdatum:22.04.2025
-
Energieausweistyp:Verbrauchsausweis
-
Wesentlicher Energieträger:Gas
Energieausweis
Energieausweis liegt zur Besichtigung vor!
Provisionsfrei für den Mieter.
Alle Angaben beruhen auf den Aussagen und Unterlagen des Eigentümers. Es gelten unsere Geschäftsbedingungen, die in unseren Räumen zur Ansicht aushängen; auf Verlangen werden sie ausgehändigt.
Ausstattung
- Balkon
- Einbauküche
- Gäste-WC
- Keller
- Stellplatz














