Attraktives Zweifamilienhaus mit vermieteter Einheit und Garten in ruhiger Lage
Überblick
Dieses attraktive Zweifamilienhaus wurde im Jahre 1982 in solider Massivbauweise errichtet und vereint hohes Raumangebot mit guter, überregionaler Verkehrsanbindung. Auf einem 655 m² großen Grundstück bietet das Objekt eine Gesamtwohnfläche von 173,87 m², verteilt auf zwei separate Wohneinheiten im Erd- und Dachgeschoss.
Ob als klassisches Einfamilienhaus, Mehrgenerationenwohnen, Kombination aus Wohnen und Arbeiten unter einem Dach oder als Kapitalanlage – die Immobilie eröffnet vielfältige Nutzungs- und Gestaltungsmöglichkeiten.
Nach dem Betreten des Hauses gelangen Sie in das zentrale Treppenhaus, welches das Untergeschoss sowie das Erd- und Dachgeschoss miteinander verbindet und die Wohneinheiten klar voneinander trennt.
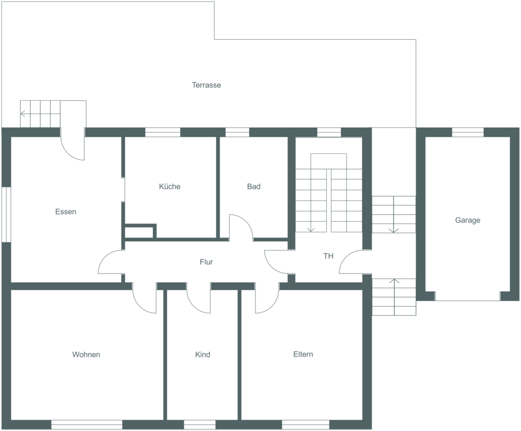
Erdgeschoss
Im Erdgeschoss befindet sich eine zuverlässig vermietete Wohneinheit mit einer Wohnfläche von 94,51 m². Alle Räume dieser Ebene sind vom zentral gelegenen Flur aus erreichbar und überzeugen durch eine funktionale sowie familienfreundliche Aufteilung.
Das Herzstück der Etage, als Ort des Beisammenseins, bildet das Wohnzimmer. Angrenzend, jedoch räumlich getrennt, befindet sich das Esszimmer. Von hier aus besteht ein direkter Zugang zur Küche, welche separat angeordnet und praktisch geschnitten ist.
Ein besonderes Highlight des Erdgeschosses ist der vom Esszimmer erreichbare Zugang zur rückwärtig gelegenen Terrasse und dem dahinter angelegten Gartenbereich, der über wenige Stufen erreichbar ist und zusätzlichen Erholungswert bietet.
Ein (Eltern-)Schlafzimmer sowie ein Kinderzimmer, welches alternativ als Büro genutzt werden kann, ergänzen das Raumangebot.
Das freundliche Tageslichtbad ist mit Waschbecken, WC und einer Badewanne ausgestattet.
Dachgeschoss
Die zweite Wohneinheit befindet sich im Dachgeschoss und ist aktuell nicht vermietet. Mit einer Wohnfläche von 79,36 m² bietet die Wohnung eine nahezu identische Raumstruktur wie das Erdgeschoss und eignet sich somit sowohl zur Eigennutzung als auch zur Neuvermietung.
Analog zum Erdgeschoss werden auch hier alle Räume über den Flur erschlossen. Der Wohnbereich ist hell und freundlich gestaltet.
Das Esszimmer bietet neben der Verbindung zur Küche auch einen direkten Zugang zum süd-westlich ausgericheten Balkon, welcher den Wohnkomfort im Außenbereich fortführt. In diesem Raum befindet sich außerdem ein Ofen, der ergänzend zur bestehenden Heizungsanlage zwecks Wärmegewinnung, aber auch zur Schaffung einer gemütlichen Atmosphäre genutzt werden kann.
Zwei weitere Zimmer, beispielsweise nutzbar als Schlafzimmer, Büro oder als Gästezimmer, runden das Flächenangebot ab.
Das um 2018 modernisierte Tageslichtbadezimmer verfügt über ein WC, ein Waschbecken sowie eine bodengleiche Dusche.
Dachboden
Über das Treppenhaus ist zudem der Dachboden erreichbar. Dieser bietet zusätzliche Nutzfläche sowie Ausbaupotenzial, beispielsweise zur Erweiterung der Dachgeschosswohnung oder zur Schaffung weiterer Abstell- oder Hobbyflächen.
Untergeschoss
Im Untergeschoss befinden sich weitere Räume mit wohnlichem Charakter. Diese verfügen über Heizung sowie Strom- und Wasseranschlüsse.
Darüber hinaus sind im Untergeschoss der Heizungsraum, der Tankraum sowie Abstell- und Nebenräume untergebracht.
Garagen und Außenbereiche
Zum Objekt gehören insgesamt zwei Garagen, die drei Stellplätze umfassen. Eine Einzelgarage befindet sich, frontal betrachtet, direkt rechts vom Haus. Weiterhin steht eine Doppelgarage hinter dem Haus zur Verfügung, die über eine separate Zufahrt erreichbar ist, welche von der Straße aus links am Haus entlangführt.
Die vorhandenen Außenbereiche mit Terrasse, Garten und Balkon ergänzen das Haus sinnvoll und bieten zusätzliche Nutzungsmöglichkeiten im Freien.
Ausstattung
Fenster:
Rolladenkästen gedämmt
Garagen:
1 Einzelgarage (elektrisch)
1 Doppelgarage (2 Tore: 1 elektrisch, 1 manuell)
Heizung:
Baujahr 2010 (Öl)
Details
-
ID:OP130450749
-
Grundstücksfläche:655 m²
-
Wohnfläche:173,87 m²
-
Räume:8
-
Schlafzimmer:4
-
Badezimmer:2
-
Garagen:2
-
Preis:269.000 €
-
Baujahr:1982
-
Status:
-
Erstellungsdatum:25.10.2025
-
Energieausweistyp:Bedarfsausweis
-
Wesentlicher Energieträger:Heizöl
Energieausweis
-
Energieklasse:G
-
Energiebedarf:239,1 kWh/m²a
Provision für Käufer: Die Courtage i.H.v. 3,57% inkl. MwSt. ist bei Kaufvertragsabschluss fällig.
Alle Angaben beruhen auf den Aussagen und Unterlagen des Eigentümers. Es gelten unsere Geschäftsbedingungen, die in unseren Räumen zur Ansicht aushängen; auf Verlangen werden sie ausgehändigt.
Ausstattung
- Balkon
- Einbauküche
- Garage
- Garten
- Keller
- Stellplatz
- Terrasse














